



fertigstellung_
2013
auftraggeber_
eisele staniek +
entwurfsverfasser_
Städtische KiTas Frankfurt am Main
standort_
Frankfurt am Main
Frankfurter Berg
bgf_
1.310 m2
beschreibung_
fünfzügiger Kindergarten mit Kinderkrippe und Horteinrichtung
leistungen_
Lph 6 - 8

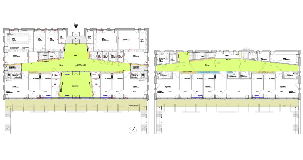
Der fast 50 Jahre alte marode Vorgängerbau auf dem ehemaligen Kasernenstandort war nach einer Untersuchung des Hochbauamtes nicht mehr sanierbar. Hier findet nun ein fünfzügiger Kindergarten mit Kinderkrippe und Horteinrichtung auf zwei Geschossen Platz. Besonderheit ist das nach Süden weit auskragende Dach mit den tragenden Lerchenrundstützen. Es beschattet die Gruppenräume optimal und sorgt für geschützte Spielbereiche auf dem großen Fluchtbalkon. Die Kindertagesstätte in Plus-Energie-Bauweise ist ein Pilotprojekt der Stadt- Frankfurt.